OfertaPlany i ZdjęciaOkolicaMapkaKontakt
Tlumaczenie:

Plany

Lokal nr 1

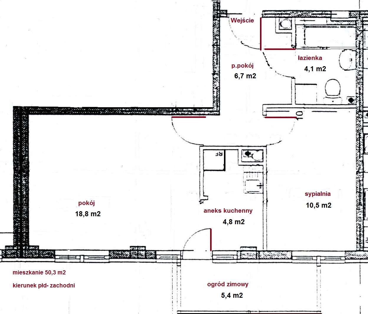
Mieszkanie nr 1

Pokój - widok 1 Pokój - widok 2 Kuchnia Łazienka Przedpokój Widok 1 Widok 2

Lokal nr 2

Mieszkanie nr 2

Widok 1 Pokój (duży) Aneks kuchenny Aneks kuchenny Przedpokój Sypialnia Łazienka

    Copyright © 2026 WSZP  

Strona wygenerowana w czasie: 635463 sek.